Salta ai contenuti.Salta alla navigazione

Dal 9 dicembre 2025 al 12 gennaio 2026 compresi non sarà possibile effettuare acquisti sul nostro sito web. Potrete tornare a fare i vostri acquisti online dal 13 gennaio 2026.

Dal 9 dicembre 2025 al 12 gennaio 2026 compresi non sarà possibile effettuare acquisti sul nostro sito web. Potrete tornare a fare i vostri acquisti online dal 13 gennaio 2026.

0182#_###_023# SOLAGNA (Chiesa S. Giustina V.M.)

0182#_###_023# SOLAGNA (Chiesa S. Giustina V.M.)
20.0 NETTO IVA 22.0%
  • Disponibilita'
  • Accedi al sito per procedere con l'acquisto
Ultimo aggiornamento DB 2018-11-06, Scheda generata il 07/11/2018.
caposaldi di livellazione scheda descrittiva
Prima di acquistare questo caposaldo si consiglia di scaricare la scheda della monografia presente in questa pagina, per verificare, con un sopralluogo, il buon stato di conservazione della materializzazione (a volte danneggiata da ristrutturazioni edili, stradali, eventi naturali, vandalismi ecc)
0182#_###_023#     SOLAGNA
Coordinate
ROMA40   ETRF2000  
ROMA40 Φ       45° 48' 46"   ETRF2000 Φ       45° 48' 48"  
ROMA40 λ      -00° 43' 56"   ETRF2000 λ       11° 43' 11"  
 
Localita e Cartografia
Comune SOLAGNA           Serie 100 037 Bassano del Grappa
Provincia VICENZA  Serie 50 083 Monte Grappa
Regione VENETO   Serie 25 083 sez III Monte Grappa
Nazione ITALIA   Serie 25V 037 IINO Bassano del Grappa
Quote (m)  AttenzioneLe quote sono espresse in metri e troncate al metro
  A B C  
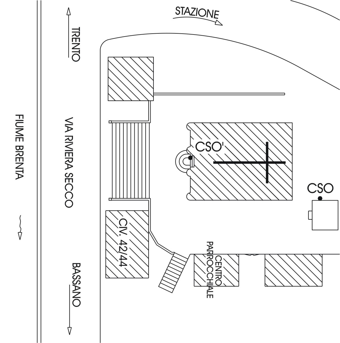
130 (CSO) - Bullone IGM infisso alla base della parete sinistra (rispetto all'entrata) del campanile posto dietro la chiesa.
129 (CSO') - Disco metallico impiombato IGM sito sulla soglia della chiesa, a sinistra entrando.


Prog. Chilometrica (titolo e link)   Km 21,779 dal Caposaldo 0181#_###_029#
Ultima ricognizione 2006
Modalita' Caposaldo di livellazione
Immagini:



Monografia Foto 1 Foto2
(Clicca sulle immagini per ingrandire)
© 2015 Istituto Geografico Militare, vietata la copia e la divulgazione non autorizzata.
Message