Salta ai contenuti.Salta alla navigazione

Dal 9 dicembre 2025 al 12 gennaio 2026 compresi non sarà possibile effettuare acquisti sul nostro sito web. Potrete tornare a fare i vostri acquisti online dal 13 gennaio 2026.

Dal 9 dicembre 2025 al 12 gennaio 2026 compresi non sarà possibile effettuare acquisti sul nostro sito web. Potrete tornare a fare i vostri acquisti online dal 13 gennaio 2026.

031610 PONTE TRESA - LOCALITA' CAMER (Manufatto ENEL )

031610 PONTE TRESA - LOCALITA' CAMER (Manufatto ENEL )
30.0 NETTO IVA 22.0%
  • Disponibilita'
  • Accedi al sito per procedere con l'acquisto
Ultimo aggiornamento DB 2021-01-01, Scheda generata il 01/01/2021.
IGM95 scheda descrittiva
Prima di acquistare questo punto IGM95 si consiglia di scaricare la scheda della monografia presente in questa pagina, per verificare, con un sopralluogo, il buon stato di conservazione della materializzazione (a volte danneggiata da ristrutturazioni edili, stradali, eventi naturali, vandalismi ecc)
031610     PONTE TRESA - LOCALITA' CAMER
Cartografia Serie 25 074 sez I Porto Ceresio
Serie 25V 031 INE Lavena Ponte Tresa
Localizzazione
Nazione ITALIA
Regione LOMBARDIA
Provincia VARESE
Comune CADEGLIANO-VICONAGO
Carabinieri PONTE TRESA
Coordinate Attenzione Le coordinate geografiche sono in gradi sessagesimali approssimate al secondo. Le coordinate piane e le quote sono espresse in metri con cifre significative fino al decametro.
ROMA40   ETRF2000   Quote
Φ 45° 58' 26"   Φ 45° 58' 29"   s.l.m. 500
λ -03° 36' 54"   λ 08° 50' 13"   Quote ellisoidica 550
F.O. N5091260 F.32 N5091250  
  E1487400   E487370  
F.E. N F.33 N  
  E   E  

Coordinate determinate nell'anno 2004  
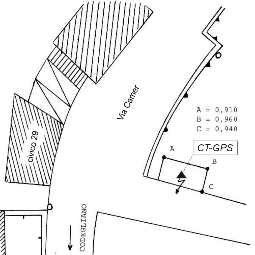
Materializzazione Centrino Regione Lombardia infisso sulla sommità di un manufatto ENEL in calcestruzzo, in località Camer.
Accesso Da Varese percorrere la S.S. 233 Varesina in direzione Ponte Tresa; al Km. 70,100 deviare a sinistra sulla S.P. 30 per Cadegliano- Viconago e dopo 900 metri al bivio tenere la destra per Cadegliano proseguendo fino ad arrivare in località Camer. Il punto si trova sulla destra della strada, di fronte al civico 29, su un manufatto ENEL
Informazioni Ausiliare Carta Tecnica Regionale: A4d1
Categoria del punto Rete secondaria di raffittimento
Quota s.l.m. Con quota derivata dal modello del geoide (ITALGEO2005)
Produttore Ente Pubblico
Segnalizzato 03/04/2003
Ultima ricognizione 18/03/2017
Collegamenti
Modalita' Vertice di raffittimento
Immagini:




Monografia Cartografia Foto 1 Foto2
(Clicca sulle immagini per ingrandire)
Message